Gewerbeimmobilie > Bürofläche
Zu Vermieten
Helles 2 Zimmer - Büro - DG | wenige Schritte entfernt - Straßebahnlinie 46 | Nähe Brunnenmarkt & U6 Thaliastraße
1160 Wien
999,32 €
3723/2173
ca. 2014
51 m²
2
-
Aussicht
-
Hausansicht/Thaliastraße
-
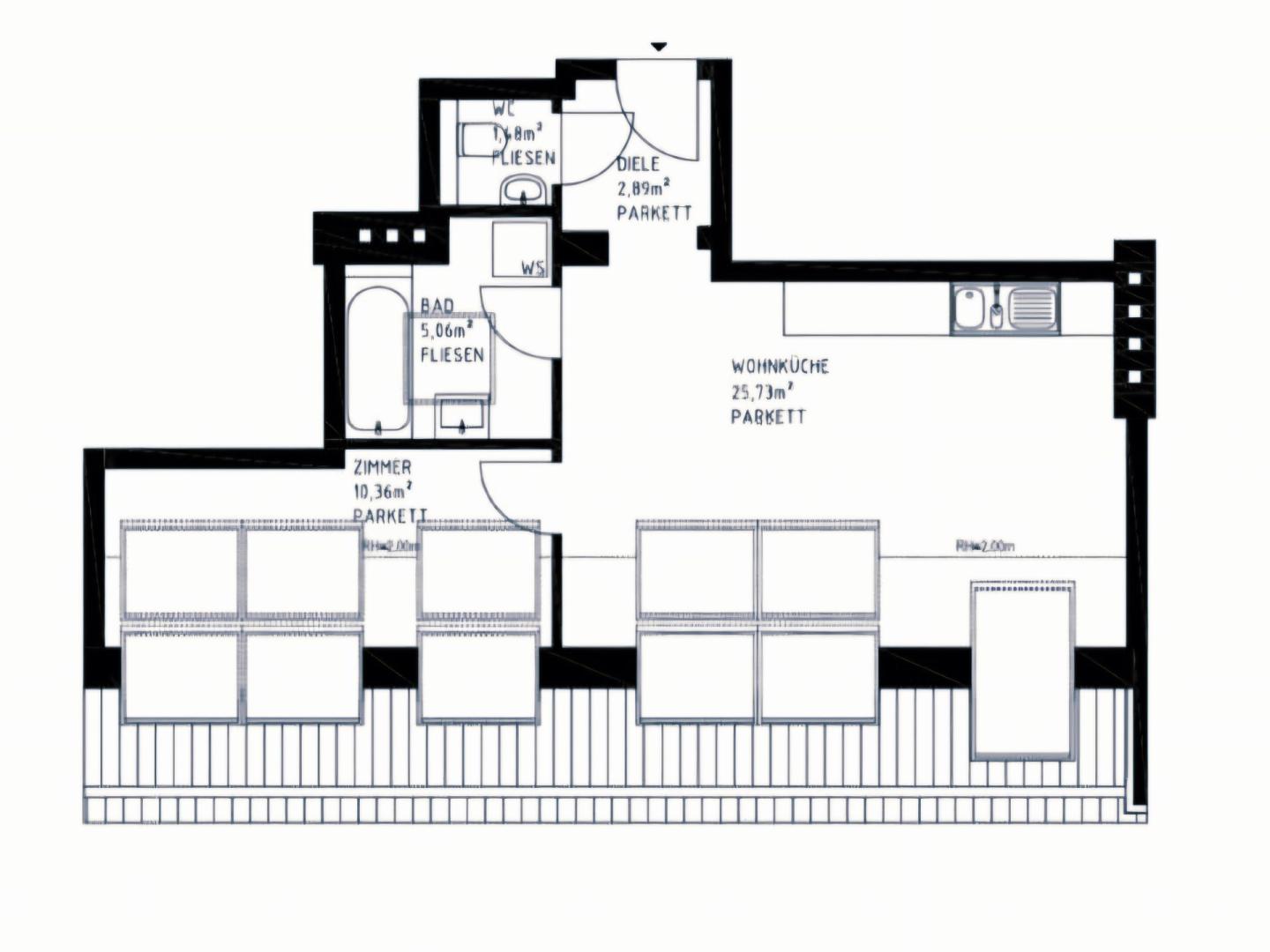
Plan Top 37
-
Eingang
-
Ansicht Vorraum - Eingangstüre
-
Großes Zimmer
-
Großes Zimmer2
-
Küchenanschlüsse
-
Großes Zimmer3
-
Ansicht zum zweiten Zimmer - Bad - Eingang
-
zweites Zimmer
-
Badezimmer
-
Dachfenster - Badezimmer
-
WC
-
Aufzug
-
Aufzug Stiegenhaus
-
Stiegenhaus
-
EIngang/Stiegenhaus
-
EIngang/Stiegenhaus2
-
Das 2 Zimmer – Büro befindet sich im 4. Stock (DG) mit Lift in einem schönen Eckhaus.
– Nutzfläche ca. 50,87 m²
– Eingangsbereich / Vorraum
– Großes Zimmer mit Küchenanschlüsse
– zweites Zimmer
– Badezimmer mit Badewanne, Waschbecken und Waschmaschinenanschluss (Dachfenster vorhanden) – WC mit Waschbecken
– Kellerabteil vorhanden
Ausstattung:
Keine Küche vorhanden! Anschlüsse vorhanden!
Ab SOFORT beziehbar!
Mietdauer: 5 Jahre
Gesamtmiete: € 999,32 inkl. Betriebskosten und Ust.
Kaution: € 2.800,-
Provision: 3 BMM
Infrastruktur und Umgebung:
Straßenbahn: 46 unmittelbar vor der Haustüre
U-Bahnstation: U6 Thaliastraße 2 Straßenbahnstationen entfernt.
Apotheken, Banken, Supermärkte finden Sie in unmittelbarer Nähe.
Für nähere Auskünfte steht Ihnen Herr Dzakula unter +43 664 524 95 15, office@cyh.at gerne zur Verfügung.
CatchYourHome Immobilien GmbH
Because home is not a place, it´s a feeling.
www.catchyourhome.at Münichreiterstraße 29/6, A-1130 Wien
Telefon: +43 1 720 129 211
Fax: +43 1 720 129 211 DW 89Angaben gemäß gesetzlichem Erfordernis:
Miete € 721,31 zzgl 20% USt. Betriebskosten € 121,59 zzgl 10% USt. Umsatzsteuer € 156,42 —————————————————————— Gesamtbetrag € 999,32 —————————————————————— Heizwärmebedarf: 27.2 kWh/(m²a) Klasse Heizwärmebedarf: B Faktor Gesamtenergieeffizienz: 0.8 Klasse Faktor Gesamtenergieeffizienz: B -
Flächen
- Nutzfläche: 50,87 m²
- Bürofläche: 50,87 m²
- Zimmer insgesamt: 2
- Separate WCs: 1
Zustand & Erschließung
- Baujahr: ca. 2014
- Zustand: gepflegt
Sonstiges
- Immobilie ist verfügbar ab: sofort
- Mindest-Mietdauer (Jahre): 5.0
-
- Heizungsart: Etagenheizung
- Befeuerung: Gas
- Bodenbelag: Parkett
-
Personenaufzug
-
- Energieausweis-Art: Bedarf
- HWB-Wert: 27,20 kWh/(m²*a)
- HWB-Klasse: B
- fGEE-Wert: 0,80
- fGEE-Klasse: B
- Primärenergieträger: Gas
Endenergiebedarf dieses Gebäudes27,20 kWh/(m²·a)050100150200250300350≥400fGEE-Wert: 0,80fGEE-Klasse: B -
-
- Gesamtmiete: 999,32 €
- Gesamtkosten: 999,32 €
- Kaution: 2.800 €
- MwSt.-Satz: 20 %




































