Wohnimmobilie > Etagenwohnung
Zu Verkaufen
Ruhige 1,5 Zimmer Wohnung | Großes Zimmer + Kabinett & extra Küche | Nähe Laubepark
1100 Wien
147.600 €
3723/2153
ca. 1900
41 m²
1,5
-
Wohnzimmer Ansicht 2
-
Wohnzimmer Ansicht 1
-
Wohnzimmer Ansicht 3
-
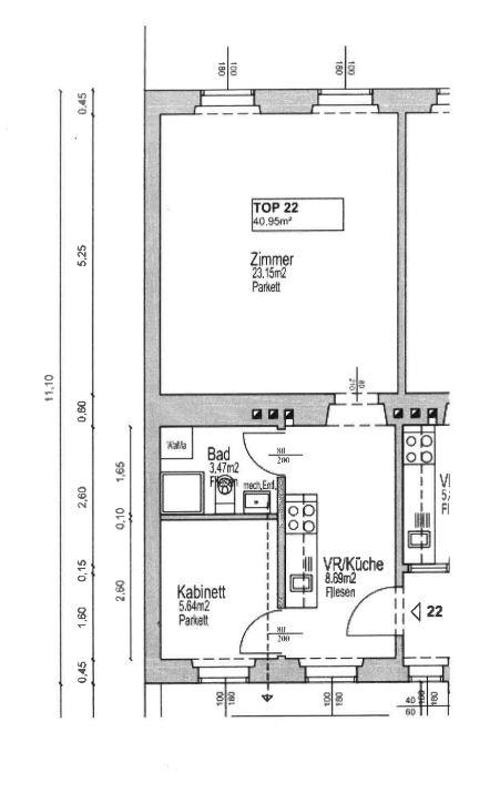
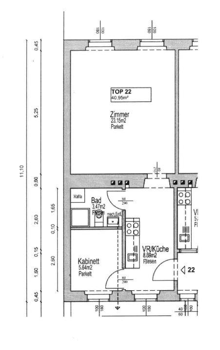
Plan
-
Vorraum
-
Küche
-
Küche zweite Ansicht
-
Kabinett
-
Kabinett zweite Ansicht
-
Bad mit WC
-
Hausfassade
-
Gasse
-
Zum Verkauf gelangt eine 1,5 – Zimmer Wohnung in 1100 Wien.
Eckdaten Wohnfläche: ca. 41 m²
Stockwerk: 3. Stock
Heizungsart: Gasetagenheizung
Aufzug: Nein
Baujahr: ca. 1900
Raumaufteilung:
– Vorzimmer mit Küche (Fenster vorhanden) ca. 9 m²
– Großes Wohnzimmer ca. 23 m²
– Schlafkabinett ca. 6 m²
– Bad mit Dusche, WC und Waschbecken ca. 3,5 m²
Infrastruktur – Städtischer Kindergarten Laxenburgerstraße (ca. 6 Gehminuten) – Billa (ca. 3 Gehminuten) – Spar (ca. 3 Gehminuten) – Bäckerei (ca. 3 Gehminuten) – Lauberpark (ca. 3 Gehminuten)
Verkehrsanbindung: – Straßenbahnstation Neilreichgasse –1, 6 (ca. 2 Gehminuten) – Busstation Quellenplatz – 200, 210 (ca. 8 Gehminuten) – U Bahn Station Reumannplatz – U1 (ca. 12 Gehminuten)
Kosten: Betriebskosten: ca. 182,-
Kaufpreis: € 147.600,-
Kaufnebenkosten: 3,5% Grunderwerbsteuer
1,1% Grundbucheintragungsgebühr
3,0% Maklerhonorar + 20 % MwSt.
?% Vertragserrichtungskosten + 20 % MwSt.
Für nähere Auskünfte steht Ihnen Herr Angelo Dzakula unter +43 664 524 95 15 oder office@cyh.at gerne zur Verfügung.
CatchYourHome Immobilien GmbH
Because home is not a place, it´s a feeling.www.cyh.at
Münichreiterstraße 29/6, A-1130 Wien
Telefon: +43 1 720 129 211
Email: office@cyh.atAngaben gemäß gesetzlichem Erfordernis:
Heizwärmebedarf: 179.9 kWh/(m²a) Klasse Heizwärmebedarf: E Faktor Gesamtenergieeffizienz: 2.77 Klasse Faktor Gesamtenergieeffizienz: E -
Flächen
- Wohnfläche: 41 m²
- Zimmer insgesamt: 1,5
- Schlafzimmer: 1
- Badezimmer: 1
- Separate WCs: 1
- Etage: 3
Zustand & Erschließung
- Baujahr: ca. 1900
- Zustand: gepflegt
- Alter: Altbau
- Bauweise: Massiv
- Keller: voll unterkellert
Sonstiges
- Immobilie ist verfügbar ab: nach Vereinbarung
-
- Heizungsart: Etagenheizung
- Befeuerung: Gas
-
teilmöbliert
-
- Energieausweis-Art: Bedarf
- HWB-Wert: 179,00 kWh/(m²*a)
- HWB-Klasse: E
- fGEE-Wert: 2,77
- fGEE-Klasse: E
- Primärenergieträger: Gas
Endenergiebedarf dieses Gebäudes179,00 kWh/(m²·a)050100150200250300350≥400fGEE-Wert: 2,77fGEE-Klasse: E -
-
- Kaufpreis: 147.600 €
- Käuferprovision: 3.00 %
- MwSt.-Satz: 20 %






















